「新規」中古別荘Y棟(2001年築)
価格万円
中古別荘
物件詳細
| 区画番号 | 1-N-16.17 |
|---|---|
| 建築年月 | 2001年 |
| 敷地全体面積 | 456.00㎡ |
| その他設備 | トイレ:水洗(合併浄化槽) |
| 建築面積 (延べ床面積) |
72.87㎡ (139.93㎡) |
| 1階床面積 | 72.04㎡ |
| 2階床面積 | 57.96㎡ |
| 3階床面積 | |
| 備考 | 什器・備品含まない |
管理事務所すぐそばのエリア。
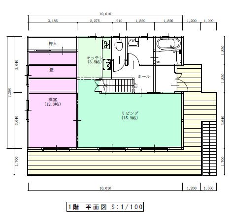
高床式の建物で居住スペースは2階にあり、通りからの目線を気にすることなくご滞在いただけます。
広々としたリビングには畳のスペースがあり、くつろぎスペースにピッタリです。
1階部分は普通車1台が駐車可能。
ガレージとしてお使いいただける所は大変うれしいポイントです。
翠峯苑では出入り口に近いので、登山、釣り、ウィンターアクティビティーと、アウトドア好きの方の休日の拠点としてもおすすめです。
日常に彩を添える別荘ライフを、是非「ひるがの高原リゾート翠峯苑」でお過ごし下さい。
【管理費及び共益費】
①土地管理費年間1㎡当たり45円
②建物管理費年間1棟当たり65,000円 共益費5年間:25,000円
【水道料金】
簡易水道:年間20,000円
電気:中部電力との直接契約
プロパンガス:㈱マルエイ又は郡上ガスとの直接契約
テレビ共聴:加入金139,500円、年間維持費16,200円
電話:NTTにお申込み頂きます
※上記、価格は全て税別です
※個人の場合です。詳細はお問い合わせ下さい
※共益費:新築別荘の場合は建築後5年間、中古別荘の場合は購入後5年間、共益費をお支払いいただきます
※その他、契約印紙代や登記費用、固定資産税や不動産取得税が必要となります

















